長野市 三輪
長野市三輪 南棟
家事スムーズ+家スッキリ
家族団らんの叶う家
- 完成前
-
お問合せキャンペーン実施中!【来店特典】Amazonギフト+オリジナルコーヒープレゼント!/【成約特典】寒冷地用エアコンプレゼント!

【同タイプ _キッチン】奥様に嬉しい食器洗い乾燥機付き!ビルトイン型で見た目もスッキリ♪

【同タイプ_浴室】一坪タイプのユニットバス。落ち着いた雰囲気の浴室で、ゆったりとくつろぐことができます。

【同タイプ_トイレ】トイレはウォシュレット付き、暖房便座など機能が盛りだくさんです。

【同タイプ_洗面】お掃除のしやすさと使いやすさを女性目線で選んだドレッサー。タオルや小物も収納できる可動棚をつけました!

【同タイプ_脱衣室収納】タオルや小物も収納できる可動棚をつけました!

【同タイプ_WIC】たっぷりの収納力を備えたウォークインクロゼット付きの寝室。季節物の衣類もたっぷり収納でき、室内をいつもすっきり広々空間が確保できます。

【完成外観パース】ホワイト×板貼りで優しい印象に仕上げた外観♪

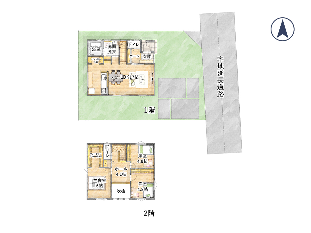
【配置図】29.02坪 3LDK+パントリー1帖+ウォークインクローゼット3帖
- 収納が充実した間取りでスッキリと暮らせる!
人気のパントリー付き間取りプラン♪ - 繁華街を離れた落ち着いたエリア、近くには買い物施設や駅、公園も多数あり
子育て世代からシニアまで様々な世代に嬉しい住環境♪
保育園・小学校までは徒歩4分と通園通学も安心な立地です。
ナチュラルとスタイリッシュを組み合わせた片流れ屋根のおしゃれな外観。
白い外壁に無垢レッドシダーを板張りした玄関ポーチが上質で温かみのあるファサード。
また優しい木目や明るいクロスが演出する居心地の良い室内空間が、住む人の心をリラックスさせてくれます。
1階は南向きの窓と吹抜けから明るい光が差し込む17.6帖のLDK。
キッチン北側には1帖のパントリーと可動式の棚を備えたオープン収納を設置。
モノが増えやすいキッチンやリビングだから収納を充実させた間取りすることでおしゃれにスッキリした暮らしを実現♪
パントリーには、食品のストックやお米、水などキッチン周辺で収納したいたくさんのモノが収納可能に!
オープン収納は、ボックスやカゴを使って見せる収納も◎。グリーンや小物を飾れば、おしゃれなカフェ風インテリアで暮らし上手に。
2階ホールは、4.1帖。物干しポールと半帖の収納を設置。
洗濯を干して、とりこむ、たたむ、収納するまでの洗濯動線を整え
より暮らしやすく、家事もスムーズに効率良くなるよう考えました。
ウォークインクローゼット付きの主寝室、玄関や洗面などの各所に設けられたしっかり収納など、
お客様から「ほしかった!」の声が多い機能や利便性に配慮した家づくりで、
「家事スムーズ」+「家スッキリ」+「家族団らん」の叶う家が完成しました。
LOCATION
本郷駅徒歩5分、3駅利用可能!徒歩15分圏内に生活に便利な施設が充実している好立地!
・繁華街から離れ落ちついた雰囲気漂う住宅街
・三輪保育園徒歩4分、三輪小学校徒歩4分、東部中学校徒歩15分!通園通学が便利♪
・公園が多く自然豊かな住環境!身近に四季を感じられます♪
・周辺にはスーパー、コンビニ、病院もあり生活に便利♪
・新規分譲地なので子育て世代も多く、コミュティ作りをサポート!
・県道399号線(旧北国街道)まで約100m交通アクセスも良好です!
-

- 01
- ミツワ会長野市三輪保育園 徒歩4分(250m)
-

- 02
- 長野市立三輪小学校 徒歩4分(250m)
-

- 03
- 美和公園 徒歩4分(250m)
-

- 04
- 長野電鉄長野線 本郷駅 徒歩5分(400m)
-

- 05
- 北野病院 徒歩7分(550m)
-

- 06
- ザ・ビック長野三輪店 徒歩12分(900m)
STAFF VOICE
\内覧はWEB予約がおすすめ♪/

内覧予約のメリット
メリット1.お待たせすることなくご案内できます!
土日など見学が混雑する場合でも、来場予約の方は営業担当が待機し、
待ち時間がなく優先してご案内させて頂きます。
メリット2.打合せがスムーズ!
事前に「気になる点」「聞きたいこと」をお伝え頂ければ、
ご来場までに資料をご用意させて頂き回答させて頂きます。
メリット3.完成物件をご案内
未完成であっても、近隣の完成物件へご案内いたします!
メリット4.平日のご案内も可能
土日がお休みでないお客様も事前のご予約で平日のご案内が可能♪
現地に営業担当が不在の為、来場予約がおすすめです。
メリット5.WEB予約特典プレゼント!
WEB予約の方限定!
Amazonギフト1000円分+サンプロオリジナルコーヒーをプレゼント♪
物件概要
| 所在地 | 長野市 三輪 8丁目 578-26、578-27、578-29(1/3持分)サングラム三輪 区画2 フリクラフト三輪南棟 | 築年月 | 2023年3月 |
|---|---|---|---|
| 交通 | 長野電鉄線 本郷駅 より 徒歩5分 400m 長野電鉄線 善光寺下駅 より 徒歩13分 1000m 長野電鉄線 桐原駅 より 徒歩15分 1200m |
||
| 敷地面積 | 182.81㎡(55.30坪) | 建物面積 | 95.96㎡(29.02坪) |
| 価格 | 4,090万円 | 月々支払額 | 97,302円 八十二銀行住宅ローン / 返済期間35年 / ボーナス払い100,532円 / 融資限度額1億円 / 変動金利型0.925% |
| 建ぺい率 | 60% | 容積率 | 60% |
| 土地権利 | 所有権 | 地目 | 宅地 |
| 小学校区 | 三輪小学校(250 m) | 中学校区 | 東部中学校(1800m) |
| 現況 | 建築中 | 引き渡し時期 | 相談 |
| 間取り | 3LDK+パントリー1帖+2階ホール4.1帖 | 建築構造 | 木造 ガルバリウム鋼板葺 |
| 上水道 | 公共 | 下水道 | 公共 |
| ガス | - | 駐車場台数 | 普通2台 |
| 用途地域 | 第一種中高層住居専用地域 | 都市計画 | 市街化区域 |
| 設備 | 電気 / 水道 / 風呂 / トイレ / バス・トイレ別 / LDK15帖以上 /オール電化 / 食器洗乾燥機 / IHクッキングヒーター/ システムキッチン/ 対面式キッチン / TVモニタ付インターホン / リビング階段 / シャワー付洗面化粧台 / 浴室1坪以上 / 温水洗浄便座 / 浴室に窓 / 節水型トイレ/ 全居室収納 / ウォークインクローゼット/ シューズインクローク / 全居室複層ガラスか複層サッシ /耐震等級3相当/ 駐車2台可 | ||
| 備考 | ※施工会社:(株)サンプロ 建築許可番号:第22NJK-10-01035号 ※別途要、上水道負担金 88,000円 ※敷地面積には、路地状部分34.42㎡を含みます。 ※敷地内北西側に電柱と支線あり ※分譲地内高低差あり(北側より10センチ低い、南側より20センチ高い) ※通行地役権の設定あり 【分譲地までのアクセス】円通寺西側の住宅街の一角:本郷駅を北へ160m、「三輪8・9丁目」交差点を左折し西へ230m、2本目の道路を右折、1本目を右折、左側がサングラム三輪になります。 |
||
| 取引態様 | 仲介 | ||
他の物件を見る
-
- 完成前
- 穂高柏原 西棟
家族みんなが心地よい
シックでナチュラルな家 - 安曇野市穂高柏原 / 3,280万円(税込) / 月々74,719円(税込)
- JR大糸線柏矢町駅から徒歩13分 / 214.83㎡(64.98坪) / 3LDK+4.5帖畳コーナー+6.4帖オープンスペース(2階) / 2023年3月
- この建売住宅は西に北アルプスを望むことができる安曇野市の長閑な住宅地の一角にあります。 間取りは生活同線
...VIEW MORE
-
- 完成前
- 長野市三輪 北棟
おしゃれにスッキリ暮らす
収納上手になれる家 - 長野市長野市 三輪 / 4,060万円(税込) / 月々96,466円(税込)
- 長野電鉄線 本郷駅から徒歩5分 / 189.82㎡(57.42坪) / 3LDK+パントリー1.5帖+2階ホール3.5帖+ファミリークローゼット1.5帖 / 2023年5月
- 三輪保育園徒歩4分、三輪小学校徒歩4分、東部中学校徒歩23分!という立地で通園通学が便利♪ 近くには買い
...VIEW MORE
-
- 完成前
- フリクラフト塩尻町
家族みんなが心地よい
おうち時間が充実する家 - 塩尻市塩尻町 / 2,980万円(税込) / 月々66,355円(税込)
- JR中央本線 みどり湖から徒歩19分 / 161.99㎡(49坪) / 3LDK+4.5帖畳コーナー / 2023年4月
- 宿場町の風情が残る「塩尻宿」へと続く国道153号から一本入った住宅街 落ち着きある住環境と、小学校・中学
...VIEW MORE
-
- 完成前
- 佐久市岩村田 東棟
おしゃれにスッキリ暮らす
収納上手になれる家 - 佐久市佐久市 岩村田 / 3,490万円(税込) / 月々80,797円(税込)
- JR小梅線 岩村田駅から徒歩7分 / 179.22㎡(54.21坪) / 3LDK+パントリー1.5帖+2階ホール3.5帖+ファミリークロゼット1.5帖 / 2023年6月
- 近くには買い物施設や公園も充実、子育て世代に嬉しい住環境です。 人気のファミリークローゼットやパントリー
...VIEW MORE
-
- 完成前
- 商談中
- 穂高柏原 東棟
家族みんなが主役
暮らしを楽しむ笑顔の集まる家 - 安曇野市穂高柏原 / 3,280万円(税込) / 月々74,719円(税込)
- JR大糸線柏矢町駅から徒歩13分 / 214.85㎡(64.99坪) / 3LDK+4.5帖畳コーナー+4帖オープンスペース(2階) / 2023年4月
- この建売住宅は西に北アルプスを望むことができる安曇野市の長閑な住宅地の一角にあります。 外観は今までにな
...VIEW MORE
-
- 完成前
- 佐久市岩村田 西棟
家族みんなが心地よい
シックでナチュラルな家 - 佐久市佐久市 岩村田 / 3,650万円(税込) / 月々85,313円(税込)
- JR小梅線 岩村田駅から徒歩7分 / 186.88㎡(56.53坪) / 3LDK+畳コーナー4.5帖+2階ホール5.9帖+ウォークインクロゼット2.9帖 / 2023年4月
- 白い外壁に無垢レッドシダーを板張りしたナチュラルシックなおしゃれな外観。 玄関ポーチが上質で温かみのある
...VIEW MORE





















